Ga naar inhoud

Te koop: woonhuis Burgemeester Gualthérie van Weezelplein 5 9431 AG Westerbork

Hup & Fidom Garantiemakelaars Hoogeveen
Neem contact met mij op

Bezichtiging plannen

Beschikbaar

Bezichtiging plannen

€ 425.000,- k.k.

Buitenkans in het hart van Westerbork!

Als gelukkige koper van dit vrijstaande woonhuis met uitzicht op het B.G. van Weezelplein woon je straks misschien op een heerlijke plek in het centrum met winkels, restaurants en terrassen om de hoek.

De Burg. G. van Weezelplein 5 betreft een vrijstaand woonhuis uit 1942 op 510 m² eigen grond. Het heeft een woonoppervlakte van ca 130 m² en beschikt over een bad- en slaapkamer op de begane grond. De woning zal door de meeste kopers op een aantal punten worden aangepast aan de woonwensen van deze tijd maar dan ontstaat er wel een fijn huis midden in het centrum. Verder heeft deze woning 3 slaapkamers en een tweede badkamer op de verdieping en rondom een zonnige tuin met het terras op het westen.

STERKE PUNTEN:
* Levensloopbestendig wonen met slaap- en badkamer op de begane grond;
* Centrum locatie in Westerbork;
* 129 m² aan woonoppervlak;
* 5 kamers waarvan 4 slaapkamers;
* Ruime tuin rondom de woning met 510 m² eigen grond.

LOCATIE:
De woning is gelegen in het hart van Westerbork, die bekend staat als een brinkdorp met een levendig dorpscentrum.
Rondom de Brink vind je winkels, supermarkten en gezellige horeca gelegenheden. Daarnaast biedt Westerbork een uitgebreid aanbod aan voorzieningen zoals basisscholen, sportverengingen, een zwembad en verschillende natuurgebieden. Ook beschikt Westerbork over een multifunctionele accommodatie met daarin twee basisscholen, peuterspeelzaal, kinderdagverblijf, buitenschoolse opvang en een gymzaal.

Uitvalswegen als de A28, N33 en N381 liggen op korte afstand, waardoor steden als Assen, Hoogeveen, Zwolle en Groningen goed bereikbaar zijn. Het treinstation van Beilen ligt op circa 10 autominuten, en biedt tevens een goede busverbinding van en naar Westerbork.

INDELING:
Op de begane grond de entree aan de zijkant van de woning naar de hal met toilet, trapopgang en bijkeuken. Diezelfde hal biedt toegang tot de halfopen keuken met aangrenzend de ruime woonkamer. De woonkamer is voorzien van een raampartij met vrij uitzicht aan de voorzijde en de keuken biedt tevens toegang tot de slaap- en badkamer op de begane grond. De badkamer beschikt over een inloopdouche, wastafel en toilet. Aan de voorzijde van de woning bevindt zich nog een entree, hier is ook de meterkast geplaatst.

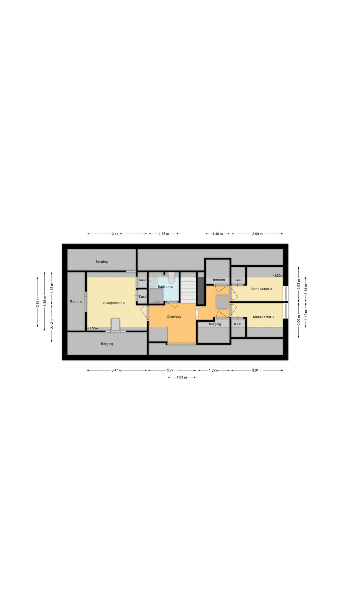
Verdieping:
Vanaf de overloop zijn drie slaapkamers, een tweede badkamer en meerdere bergruimtes bereikbaar. De grootste slaapkamer bevindt zich aan de achterzijde van de woning en beschikt over vaste kasten. Slaapkamers 2 en 3 liggen aan de voorzijde van de woning. De badkamer op de verdieping is voorzien van een douche, wastafel en toilet.

Buiten:
Rondom huis ligt een zonnige tuin met terras waarvan de achtertuin is gelegen op het westen. Door de open ligging kunt u in ieder seizoen heerlijk vertoeven in deze tuin en genieten van de zon op ieder uur van de dag. De tuin is grotendeels voorzien van gazon, borders met beplanting en groene terreinafscheiding.

Enkele kenmerken op een rij:
• Oorspronkelijke bouwjaar omstreeks 1942;
• Verwarming en warm water middels Cv-installatie uit 2013;
• Gashaard aanwezig;
• Energielabel ;
• Ruimte op eigen terrein voor het parkeren van meerdere auto’s;
• Op vrijdag staat de weekmarkt op het plein tegenover de woning;
• Aanvaarding op korte termijn bespreekbaar.

Geïnteresseerd? U wordt van harte uitgenodigd om deze royale woning met eigen ogen te komen bewonderen.

  • 129 m2
  • 510 m2
  • 4

Kenmerken Burgemeester Gualthérie van Weezelplein 5

Overdracht

Vraagprijs€ 425.000,- k.k.
AanvaardingIn overleg

Oppervlaktes en inhoud

Perceel oppervlakte510 m2
Woonoppervlakte129 m2
Inhoud478 m3

Bouw

SoortEengezinswoning
BouwvormBestaande bouw
Bouwjaar1942
Dak typeZadeldak
IsolatievormenGedeeltelijk dubbelglas
EnergielabelF

Indeling

Aantal verdiepingen3
Aantal kamers5
Aantal slaapkamers4
Aantal badkamers2

Maandlasten

Ligging Burgemeester Gualthérie van Weezelplein 5

Voorzieningen

Centraal gelegen informatie over de buurt

Aantal inwoners

In de gemeente

33.399

Leeftijd

in percentages van totaal

Huishoudsamenstelling

in percentages van totaal

31%

20% NL

38%

20% NL

31%

20% NL

Vergelijkbaar woningaanbod