€ 550.000,- k.k.
Op zoek naar een vrijstaande woning met uitzicht over vaarwater? Kom dan snel kijken aan het Noord 110!
Hierbij presenteren wij een unieke kans om te genieten van een vrijstaande woning, gelegen op een rustige en landelijke locatie. Het Noord 110 is fraai gelegen op een ruim perceel in het rustige en groene buitengebied van Hoogeveen en toch op korte afstand van het dorp Noordscheschut. De woning biedt o.a. mogelijkheden tot tuingericht wonen, dubbele bewoning of het creëren van een studio/werkruimte dankzij het woonoppervlak en het achterhuis dat nog vrij in te delen is.
Deze woning heeft niet alleen vrij uitzicht op het vaarwater met voorbijvarende boten, maar biedt ook voldoende rust met een perceel van 2.650m² eigen grond. Op de begane grond bevinden zich een slaap- en badkamer, terwijl de verdieping voorzien is van vier (slaap)kamers, met mogelijkheden om op de begane grond extra kamers te creëren. Verder is het ideaal voor hobbyisten met ca. 70m² aan bijgebouwen. De ligging aan een doodlopende straat met enkel bestemmingsverkeer en enkel passerende fietsers maakt het een heerlijk rustige locatie.
WONING
Op de begane grond o.a. de hal/entree met trapopgang, vaste kast, toiletruimte voorzien van hangtoilet, urinoir en fontein. Vervolgens een woonkamer, keuken, slaapkamer, badkamer met douche en wastafel. Ten slotte een hal met binnendoor naar het achterhuis met schuifpui naar de tuin, achterom en bijkeuken met wastafels, witgoedaansluiting, achterom en vaste kast. Tevens een tweede trapopgang naar de verdieping van het achterhuis. Het achterhuis is vrij in te delen naar eigen wens.
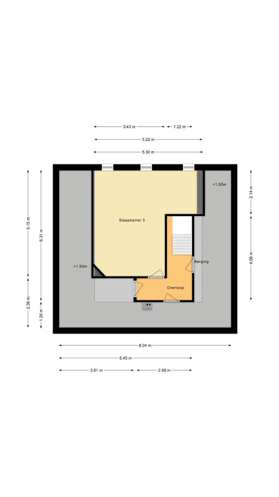
Op de verdieping aan de voorzijde van de woning een vaste trap naar de overloop en 3 (slaap)kamers, allemaal met vaste kastruimte. Aan de achterzijde van de woning wederom een vaste trap naar een overloop met toegang tot een berging/stookruimte en een 5e (slaap)kamer.
BUITEN
Rondom de woning heb je volop ruimte in de fraaie tuin die door de eigenaar met veel liefde wordt onderhouden. De diepe achtertuin biedt volop mogelijkheden voor het houden van (kleine) dieren of het realiseren/in stand houden van een moestuin, kas, bloemen, planten, terrassen en/of een vijver. Verder staat er een royale garage welke bereikbaar is via de oprit aan de zijkant van de woning.
Kenmerken en bijzonderheden:
* Bouwjaar 1970;
* Verwarming en warm water middels Cv-installatie (Atag, 2023);
* Aluminium kozijnen + dakgoten, trespa dakgoten;
* Voorzien van dubbel en HR++ beglazing;
* Deels voorzien van muurisolatie en energielabel D;
* Mogelijkheden tot dubbele bewoning of studio/werkruimte aan huis;
* Bad- en slaapkamer op de begane grond;
* Bijna 70m² aan bijgebouwen;
* Royaal perceel van 2.650 m² eigen grond;
* In de koopakte wordt een ouderdoms- en asbestclausule opgenomen;
* Aanvaarding in overleg.
We nodigen je van harte uit om deze prachtige woning te komen bezichtigen.
- 172 m2
- 2.650 m2
- 5
Kenmerken Noord 110
Overdracht
| Vraagprijs | € 550.000,- k.k. |
|---|---|
| Aanvaarding | In overleg |
Oppervlaktes en inhoud
| Perceel oppervlakte | 2.650 m2 |
|---|---|
| Woonoppervlakte | 172 m2 |
| Inhoud | 915 m3 |
Bouw
| Soort | Eengezinswoning |
|---|---|
| Bouwvorm | Bestaande bouw |
| Bouwjaar | 1970 |
| Dak type | Zadeldak |
| Isolatievormen | Muurisolatie, Dubbelglas, HR glas |
| Energielabel | D |
Indeling
| Aantal verdiepingen | 3 |
|---|---|
| Aantal kamers | 7 |
| Aantal slaapkamers | 5 |
| Aantal badkamers | 1 |
Maandlasten
Ligging Noord 110
Voorzieningen
- Christelijke Basisschool De Regenboog 609 m Jan Naardingweg 56 NOORDSCHESCHUT
- Katholieke PABO Zwolle 37 km Ten Oeverstraat 68 ZWOLLE
- Alfa-college 3 km Voltastraat 33 HOOGEVEEN
- Katholieke PABO Zwolle 37 km Ten Oeverstraat 68 ZWOLLE
- Theologische Universiteit van de Gereformeerde Kerk (Vrijg) in Nederland 45 km Broederweg 15 KAMPEN
Centraal gelegen informatie over de buurt
Aantal inwoners
In de gemeente
55.311