€ 365.000,- k.k.
Ontdek jouw droomhuis in Dalerpeel!
Aan de Dorpsstraat, midden in het dorp, staat deze bijzondere halfvrijstaande woning. Met een woonoppervlakte van 255 m² en een royaal perceel van 664 m² biedt dit huis comfortabel wonen voor het hele gezin. De woning is sinds 2005 gerenoveerd en daarbij deels voorzien van isolatie, HR-glas en een cv-installatie. Omstreeks 2021 is het pand en de kavel gesplitst waarbij de voorste helft hierbij wordt aangeboden.
Heb je een droom van een eigen zaak aan huis of overweeg je dubbele bewoning? Ook die opties zijn hier mogelijk! Om het nog beter te maken zijn de basis voorzieningen aanwezig voor een slaap- en badkamer op de begane grond, ideaal voor levensloopbestendig wonen.
Locatie:
De woning is gelegen in het midden van het dorp met de basisschool, sportvelden en multifunctionele accommodatie op loopafstand. Het centrum van Coevorden met een NS-station en aansluiting met de snelweg N34 ligt op circa 10 minuten rijden. Het dorp Dalerpeel is gelegen tussen natuurgebieden van het Drents Landschap, vanuit de woning heeft u dan ook directe uitloop/wandelmogelijkheden naar deze gebieden. 
Globale indeling woonhuis:
Op de begane grond vind je de entree met de kelder, toiletruimte en toegang naar de ruime woonkamer van 46 m². De woonkamer is voorheen een deel van de supermarkt is geweest waar grote raampartijen nog aan terug doen denken. Aan de andere kant van de entree bevindt zich de woonkeuken met tuindeuren en keukenopstelling, welke in 2005 is gerenoveerd. Een andere kamer op deze verdieping zou gebruikt kunnen worden als bijvoorbeeld studeer- of  speelkamer voor de kinderen. Natuurlijk licht is volop aanwezig in alle kamers, dankzij de grote ramen en de gunstige oriëntatie van het huis. De kelder biedt extra opbergruimte en kan naar eigen wens worden ingericht.
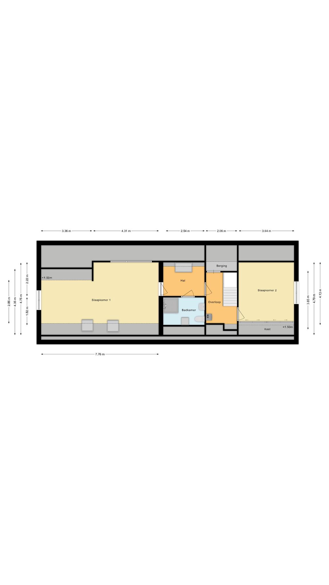
De verdieping beschikt over een royale overloop met dakkapel, twee slaapkamers (met de mogelijkheid voor een derde) en een badkamer met toilet, douche en wastafel.
Buitenruimte:
De ruime tuin van ca. 500 m² ligt rondom de woning en beschikt over meerdere terrassen. De hoofdtuin is op het oosten gelegen, voorzien van een mooie overkapping en bereikbaar via een achterom. Hoewel er momenteel geen garage is, is er wel voldoende ruimte om er een te realiseren. Aan de zijkant van het huis is een eigen oprit met plek voor meerdere auto’s.
Bijzonderheden en mogelijkheden:
* Extra (slaap)kamers beschikbaar;
* Woonoppervlakte van 255 m²;
* Dubbele bewoning mogelijk;
* Beroep aan huis mogelijk;
* Bad- en slaapkamer op de begane grond aanwezig.
Ben je al nieuwsgierig geworden? Plan dan vandaag nog een bezichtiging in.
Wacht niet te lang, want voor je het weet is dit droomhuis aan jouw neus voorbij gegaan!
- 255 m2
- 664 m2
- 3
Kenmerken Dorpsstraat 64
Overdracht
| Vraagprijs | € 365.000,- k.k. | 
|---|---|
| Aanvaarding | In overleg | 
Oppervlaktes en inhoud
| Perceel oppervlakte | 664 m2 | 
|---|---|
| Woonoppervlakte | 255 m2 | 
| Inhoud | 1.028 m3 | 
Bouw
| Soort | Eengezinswoning | 
|---|---|
| Bouwvorm | Bestaande bouw | 
| Bouwjaar | 1960 | 
| Dak type | Samengesteld dak | 
| Isolatievormen | Dakisolatie, Muurisolatie, Vloerisolatie, Grotendeels dubbelglas, HR glas | 
| Energielabel | F | 
Indeling
| Aantal verdiepingen | 3 | 
|---|---|
| Aantal kamers | 5 | 
| Aantal slaapkamers | 3 | 
| Aantal badkamers | 2 | 
Maandlasten
Ligging Dorpsstraat 64
Voorzieningen
Centraal gelegen informatie over de buurt
Aantal inwoners
In de gemeente
35.286
 
                             
                             
                             
                             
                             
                             
                             
                             
                             
                             
                             
                             
                             
                             
                             
                             
                             
                             
                             
                             
                             
                             
                             
                             
                             
                             
                             
                             
                             
                             
                             
                             
                             
                             
                             
                             
                             
                             
                             
                             
                             
                             
                             
                             
                             
                             
                             
                             
                             
                             
                             
                             
                             
                             
                             
                             
                             
                             
                             
                             
                             
                             
                             
                             
                             
                             
                             
                                 
                                 
                                 
                                 
                                 
                                 
                                 
                                 
                                 
                                 
                                 
                                 
                                 
                                 
                                 
                                 
                                 
                                 
                                 
                                 
                                 
                                 
                                 
                                 
                                 
                                 
                                 
                                 
                                 
                                 
                                 
                                 
                                 
                                 
                                 
                                 
                                 
                                 
                                 
                                 
                                 
                                 
                                 
                                 
                                 
                                 
                                 
                                 
                                 
                                 
                                 
                                 
                                 
                                 
                                 
                                 
                                 
                                 
                                 
                                 
                                 
                                 
                                 
                                 
                                 
                                 
                                 
                                 
                                 
                                 
                                     
                                     
                                     
                                                             
                             
                             
                             
                             
             
             
             
             
            